ARCHIWALNE OGŁOSZENIE

# 0315 Wrocław, Cedrowa 43,13 M2

ul. Cedrowa 1, Wrocław

Data dodania:
Województwodolnośląskie
Data zakończenia: 2023-02-22
Dostępne tylko jedno mieszkanie
Powierzchnia: 43 m2
Piętro:
PLN / miesiąc
0

Opis

OGŁOSZENIE NR 13/2023

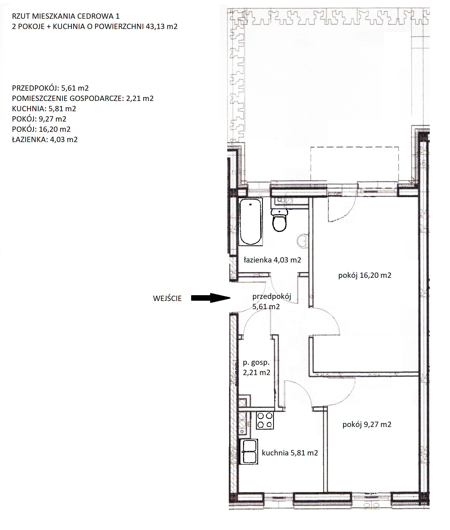
Towarzystwo Budownictwa Społecznego Wrocław Sp. z o. o ogłasza, że posiada do wynajęcia lokal mieszkalny przy ulicy Cedrowej 1 we Wrocławiu (osiedle Brochów III) o powierzchni 43,13 m², składający się z:

  1. Przedpokoju                                        5,61 m2
  2. Kuchni                                                5,81 m2
  3. Pokoju I                                               9,27 m2
  4. Pokoju II                                            16,20 m2
  5. Pom. gospodarczego                       2,21 m2
  6. Łazienki                                              4,03 m2

Mieszkanie położone jest na parterze w czterokondygnacyjnym budynku bez windy. Wyposażone w instalację wodno-kanalizacyjną, elektryczną i instalację centralnego ogrzewania (ogrzewanie gazowe z kotłowni lokalnej). Do mieszkania przynależy ogródek.

Szczegółowy opis lokalu:

Przedpokój: na podłodze panele podłogowe, ściany w kolorze białym;

Kuchnia: zlewozmywak z samodzielną szafką pod zlewozmywak, bateria zlewozmywakowa, kuchenka elektryczna z piekarnikiem, na podłodze panele podłogowe, ściany w kolorze białym;

Pokój I: na podłodze panele podłogowe, ściany w kolorze białym;

Pokój II: na podłodze panele podłogowe, ściany w kolorze białym;

Pomieszczenie gospodarcze: na podłodze panele podłogowe, ściany w kolorze białym;

Łazienka: wanna z baterią wannową, umywalka z baterią umywalkową, kompakt WC, na podłodze płytki ceramiczne, na ścianach płytki ceramiczne;

Lokal mieszkalny nie jest przystosowany dla osób z niepełnosprawnością.

Rzut mieszkania

Przewidywany termin odbioru mieszkania przez nowego najemcę: gotowe do zamieszkania.

Obowiązująca stawka czynszu za najem 1 m2 powierzchni lokalu wynosi 17,35 zł/m2. Wysokość czynszu najmu wynosi 748,31  i opłaty niezależne (zaliczki na: zimną wodę i ścieki, podgrzanie wody, centralne ogrzewanie, gospodarowanie odpadami komunalnymi) – ok. 300-400 zł.

Przyszły najemca partycypuje w kosztach budowy lokalu, stosownie do treści art. 29a Ustawy o niektórych formach popierania budownictwa mieszkaniowego.

Kwota partycypacji jaką zobowiązany jest wpłacić Partycypant wynosi 62 247,60 zł. Ponadto przyszły najemca wpłaca kaucję zabezpieczającą w wysokości 1– krotnego miesięcznego czynszu – tj. 748,31 zł.

Komisja Mieszkaniowa wyłoni przyszłego Partycypanta i Najemcę zgodnie z ,,Zasadami wyboru kolejnych najemców dla zwalnianych lokali mieszkalnych w zasobie mieszkaniowym TBS Wrocław Sp. z o. o., których umowa najmu została wypowiedziana od dnia 1 września 2020 r” (z uwzględnieniem kryteriów dodatkowych – czytaj).

Kryteria dochodowe:

Zgodnie z art. 30 Ustawy o niektórych formach popierania budownictwa mieszkaniowego, TBS może wynająć lokal mieszkalny osobie fizycznej, która partycypuje w kosztach budowy lokalu, którego będzie Najemcą, przy spełnieniu następujących kryteriów:

  1. Osoba fizyczna oraz osoby zgłoszone do wspólnego zamieszkania, w dniu objęcia lokalu nie posiadają tytułu prawnego do innego lokalu mieszkalnego w tej samej miejscowości.
  2. Średni miesięczny dochód gospodarstwa domowego, w roku poprzedzającym rok, w którym jest zawierana umowa najmu lokalu, nie może przekroczyć dochodu przedstawionego w tabeli nr 1.

TABELA NR 1. Maksymalny dochód gospodarstwa domowego

Liczba osób w
gospodarstwie domowym
1 osoba2 osoby3 osoby4 osoby5 osób6 osób
Dochód gospodarstwa domowego nie przekracza
1,3 przeciętnego miesięcznego wynagrodzenia więcej niż o:
5%55%90%125%160%195%
Maksymalny dochód* gospodarstwa domowego w zł8 031,2411 855,6414 532,7217 209,9019 886,8822 563,96

*za dochód uważa się dochód w rozumieniu art. 3 pkt 1 ustawy z dnia 28 listopada 2003 r. o świadczeniach rodzinnych (Dz. U. z 2022 r. poz. 615).

Minimalny łączny dochód netto, jaki musi uzyskiwać przyszły Najemca wraz z osobami zgłoszonymi do wspólnego zamieszkania, został określony w tabeli nr 2.

TABELA NR 2. Minimalny dochód netto gospodarstwa domowego

Liczba osób
w gospodarstwie domowym
1 osoba2 osoby3 osoby4 osoby5 osób6 osób
Minimalny miesięczny dochód netto dla osób ubiegających się o mieszkanie w TBS Wrocław
na poszczególne gospodarstwa w zł
3 x czynsz*3 x czynsz*

+ 400 zł

3 x czynsz*

+ 800 zł

3 x czynsz*

+1 400 zł

3 x czynsz*

+ 1 800 zł

3 x czynsz*

+ 2 400 zł

*czynsz oznacza kwotę podaną w ogłoszeniu, bez opłat za media

W przypadku zbyt niskich dochodów wnioskodawca zobowiązany będzie do wskazania osoby trzeciej, która przystąpi do zobowiązania Najemcy z tytułu zapłaty czynszu najmu i opłat niezależnych od Wynajmującego i będzie ponosić wraz z Najemcą solidarną odpowiedzialność za zapłatę i zawrze z TBS Wrocław umowę poręczenia.

Dokumenty:

Celem weryfikacji czy osoba zainteresowana najmem lokalu mieszkalnego spełnia warunki określone w art. 30 Ustawy o niektórych formach popierania budownictwa mieszkaniowego, Wnioskodawca zobowiązany jest do złożenia następujących dokumentów:

  • Wniosek o najem lokalu mieszkaniowego (pobierz: wniosek.docwniosek.pdf)
  • Zaświadczenie właściwego miejscowo urzędu skarbowego o wysokości dochodów uzyskanych w roku poprzedzającym przez osobę ubiegającą się o najem lokalu oraz osoby zgłoszone przez nią do wspólnego zamieszkania.

Wnioski o zawarcie umowy najmu wypełnione wyłącznie na wzorze załączonym do ogłoszenia wraz z zaświadczeniem z urzędu skarbowego przyjmowane są do dnia 22.02.2023 r. do godz. 1500.

Dokumenty przesłane po upływie wyżej wskazanego terminu nie będą uwzględniane. Za datę wpływu uznaje się datę dostarczenia wniosku, co oznacza, że wnioski wysłane przed upływem terminu a dostarczone po terminie, zostaną odrzucone.

Wnioski, zaświadczenia z urzędu skarbowego oraz zaświadczenia o niepełnosprawności należy składać drogą elektroniczną na adres: ogloszenia@tbs-wroclaw.com.pl wyłącznie w formacie .DOC lub .PDF. W tytule wiadomości e-mailowej należy podać numer ogłoszenia, którego wniosek dotyczy.

Warunkiem zarejestrowania wniosku przez pracownika Biura Obsługi Klienta jest wpisanie we wniosku numeru ogłoszenia i adresu mieszkania, którego dotyczy wniosek oraz dołączenie zaświadczenia o dochodach z Urzędu Skarbowego. 

Wnioski i zaświadczenia składane w formie papierowej, osobiście lub przesłane za pośrednictwem Poczty Polskiej bądź w formie przesyłek kurierskich, z uwagi na obowiązujące obostrzenia sanitarne, nie będą rozpatrywane.

Wybór najemcy przedmiotowego lokalu zostanie umieszczony na stronie TBS Wrocław (www.tbs-wroclaw.com.pl) w zakładce Wynajem lokali w dniu 24.02.2023 r.

Osoby zainteresowane wynajmem lokali mieszkalnych prosimy o kontakt pod numerami telefonów:

71/325 28 95 i 71/325 33 38 wew. 100, 123, 124, 125, 126, 127, 128 od poniedziałku do piątku w godz. od 800 do 1500.

pełna treść

tbs wrocław cedrowa 22.02.2023

Szczegóły

Galeria

Lokalizacja